Build On Your Lot
Available Homes
Virtual Tour
We Buy Land
Gallery
Contact Us
More...
SQ
W/D
Bedroom
Bath
Garage
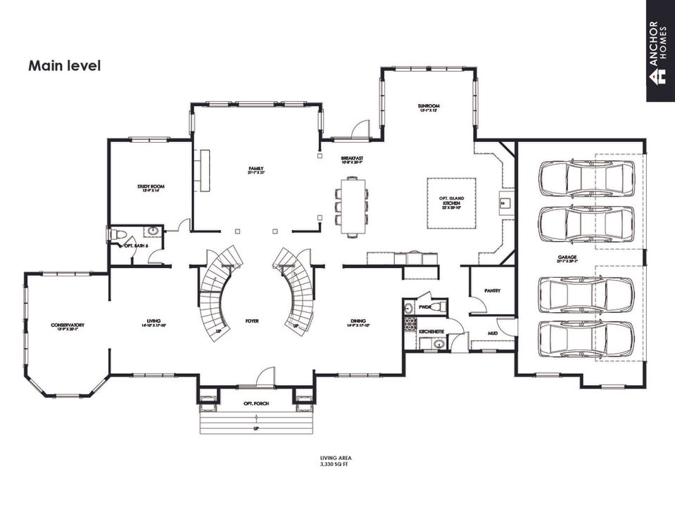
10,517 SQFT
105W x 57D
8 Bedrooms
7/1 Bath
4 Car Garage
Price
1,586,000